免費定制整裝家居
一站置家 全程無憂 一省到底當前位置: 首頁 > 裝修案例效果圖 > 萬達公園one|北歐風格
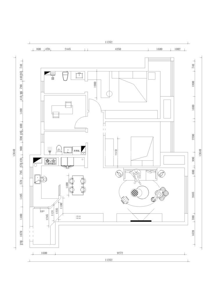
設計理念:設計師整體設計理念:北歐風格裝修以簡約為主,整體給人一種自然寧靜,實用的藝術氣息。
精品設計案例
設計說明:
三室兩廳一廚兩衛(wèi),高層整體采用美式風格,色調以深色為主,體現美式的居家感和溫馨感。
設計說明:
本案業(yè)主為年輕時尚小兩口,所以我們考慮到未來想要給未來寶寶一個溫馨舒適的一個房間,所以本案整體采用現代風格的手法,運用顏色,來打造整體空間的設計感及時尚感
設計說明:
本案以北歐風格為主題的設計,北歐風格能以現代、簡潔、自然的特點俘獲人心,所營造出來的生活氛圍會讓人倍感舒適與自在。
設計說明:
客戶是一名成功人士,對于家的執(zhí)念就是簡單干凈,客戶衣服比較多,所以把每個空間都做了大衣柜,并且融入到設計里