免費定制整裝家居
一站置家 全程無憂 一省到底設計說明:
以肉粉色為主題的色彩,以歐式為中心設計,打造簡歐得設計風格。
設計說明:
本案采用簡歐風格,利用金屬壁紙 倒棱鏡 乳膠漆變顏色相互融合 使90平米的戶型完美呈現簡歐特色
設計說明:
設計說明:生活原本有形有色,何必枯燥無味。用正確的方式來生活,活在當下。
設計師整體設計理念:本案運用簡歐的設計元素,表現了情懷和對生活的一種狀態(tài),一種認知。
設計說明:
本案是北歐風格,提起歐式風格,大家普遍想到就是各種雕花石膏線和柱式,但本案采用的是現代理念,更偏向于簡約現代的新表現,在年輕人的生活里,現代概念更貼合生活與美學的融合,這也是國內流行起來的現代北歐風格被客戶所喜愛的一個方面。在設計的前期設計師也用鳥瞰圖的形式,呈現了整體布局,全案考慮的做法,不同于大眾設計都是一個點,一個位置的設計,容易造成裝修不協(xié)調,層次不清晰和讓業(yè)主迷惑的情況。
設計說明:
本案以簡歐風格設計為主,在空間設計上利用歐式家具及元素符號,為客戶住宅空間打造沉穩(wěn)而貴氣的格調。
設計說明:
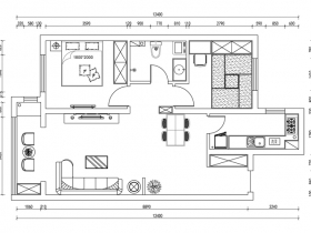
業(yè)主家庭情況及要求:業(yè)主的工作比較忙,每天都過著兩點一線的生活。他希望回到家后能夠放松,讓人心情舒暢,感到寧靜和安逸,希望在紛擾的現實生活中找到平衡,締造出一個令人心馳神往的空間。設計師整體設計理念:本案是一個兩居室的房子,此戶型的裝修風格屬于簡歐風格,簡歐風格就是簡化的歐式風格,相較于歐式風格更為實用和多元化。本案的整體色調為白色,對應著簡歐的簡單而不失奢華,營造典雅、自然、高貴的氣質。
設計說明:
美式田園風格主要是在色彩方面的家具的色彩上以原木自然色調為基礎,白色,綠色,紅色,黃色,黑色,居室整體色彩氛圍較為普遍,特別是在墻面的顏色上體現自然,懷舊的質樸氣息
設計說明:
本案設計以簡歐風格為主,以淺色主色調,燈光采用暖色燈光,體現出簡單溫馨的效果。簡歐風格就是簡化歐式裝修風格。簡歐更多表現為實用性和多元化。